Низкотемпературный моноблок Rivacold CTL006Z001 серии CT предназначен для поддержания необходимого температурного режима в холодильных камерах на предприятиях пищевой промышленности, общественного питания и торговли. Модель оснащена электронным управлением и оттайкой горячим газом. Материал корпуса - оцинкованная сталь, покрытая порошковой краской.
Технические характеристики:
- Газовое расширение: капиллярная трубка
- Потребляемый ток: 3.82 А
- Компрессор: Aspera
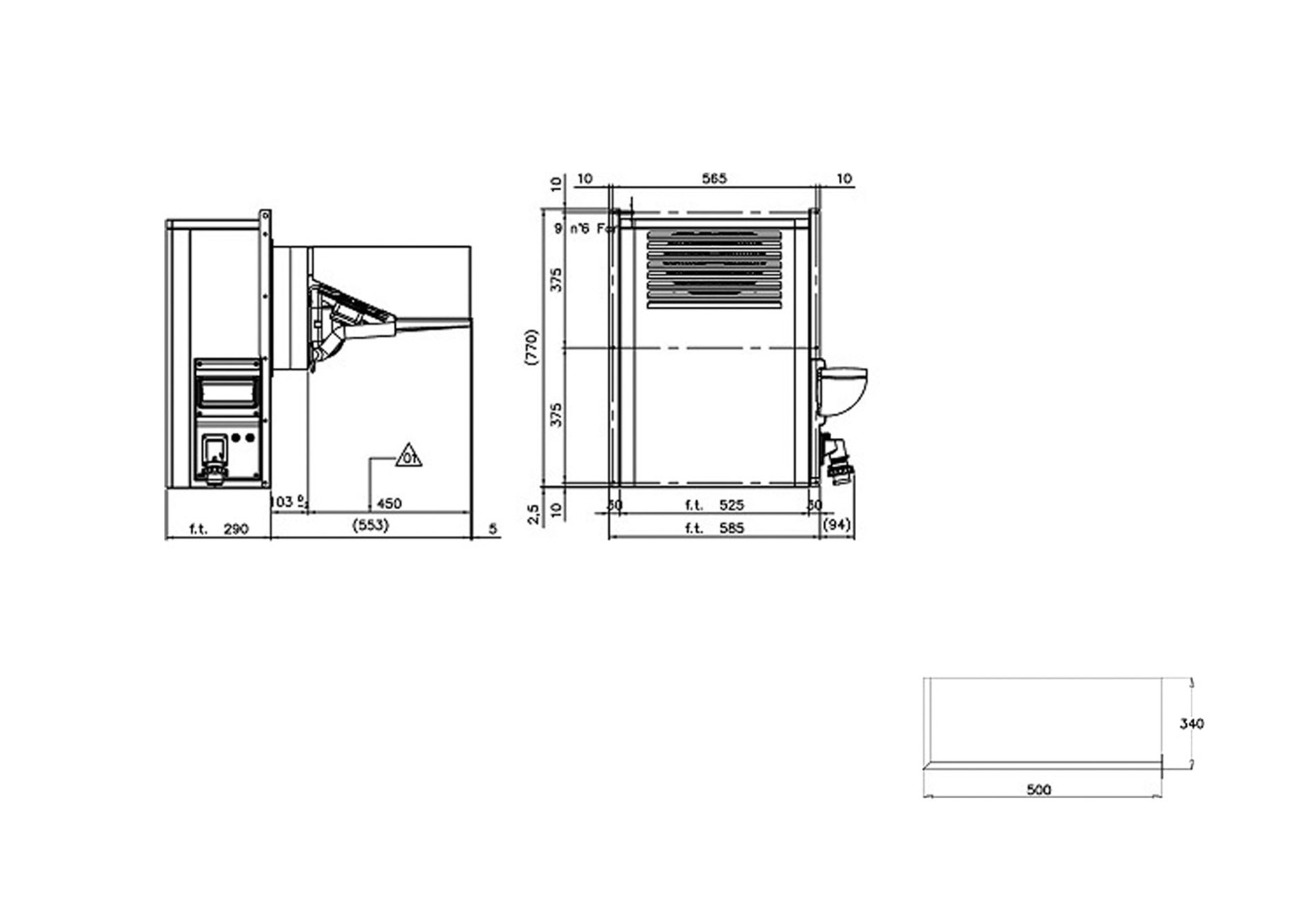
- Конденсатор:
- количество вентиляторов: 1
- диаметр: 254 мм
- воздухообмен: 874 м³/ч
- Воздухоохладитель:
- количество вентиляторов: 1
- диаметр: 200 мм
- воздухообмен: 570 м³/ч
- Дальность выброса струи воздуха: 5 м
- Тэн подогрева картера компрессора
- Воздухоохладители изготовлены из медных труб с алюминиевыми ламелями
- Герметичный поршневой компрессор
- Вариатор скорости вращения вентилятора конденсатора
- Газовое расширение капиллярной трубкой или ТРВ
- Прямой отвод конденсата
- Плафон освещения холодильной камеры закрепляется на потолке
- Реле высокого давления
- Реле низкого давления
- Расчет энергопотребления для среднетемпературных моделей верен при Т конденсации = +50°C, Т кипения = -10°С и температуре всасываемого газа + 20 ° C без переохлаждения жидкости (R404, R134)
- Расчет энергопотребления для низкотемпературных моделей верен при Т конденсации = +50°C, Т кипения = -30°С и температуре всасываемого газа 0 ° C без переохлаждения жидкости (R404, R134)
- Расчет энергопотребления для среднетемпературных моделей верен при Т конденсации = +50°C, Т кипения = -10°С и температуре всасываемого газа + 20 ° C без переохлаждения жидкости (R404, R134)
- Расчет энергопотребления для низкотемпературных моделей верен при Т конденсации = +50°C, Т кипения = -30°С и температуре всасываемого газа 0 ° C без переохлаждения жидкости (R404, R134)
Внимание! Изображение товара может отличаться от оригинала и представлено в
ознакомительных целях.